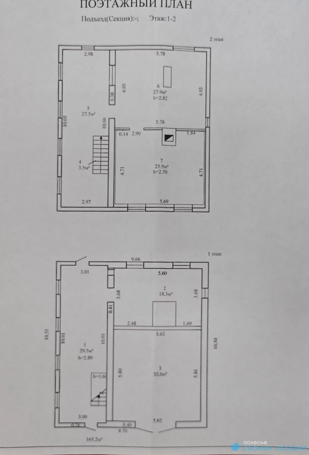
Продаю участок 0,25 га в водоохраной зоне в 7 км от Мозыря. Практически в лесном массиве (тихо, уютно, зелено, спокойно). В 3х метрах от границы зоны - река Тур. На участке есть недострой: капитальная кирпичная коробка под дальнейшую отделку (реконструкцию). Размеры дома по фундаменту 10,50 х 9,70. Дом - только стены и крыша. Перекрытия второго этажа - плиты, третьего (мансардного) - деревянные балки. Электрика не разведена. Штукатурки нет. Стяжки полов нет . Отделки нет. Есть гараж. Узаконена консервация (длит срок). Собственник один.
Строение имеет адрес в деревне (НЕ!! садовое товарищество).
Описание
Участок_Недострой_Прудок
Последнее поднятие 26 ноября 2025 в 17:08
Опубликовано 07 октября 2025 в 16:20
Опубликовано 07 октября 2025 в 16:20
Дома, коттеджи, дачи, участки
Гомельская, Мозырь
Описание
Продаю участок 0,25 га в водоохраной зоне в 7 км от Мозыря. Практически в лесном массиве (тихо, уютно, зелено, спокойно). В 3х метрах от границы зоны - река Тур. На участке есть недострой: капитальная кирпичная коробка под дальнейшую отделку (реконструкцию). Размеры дома по фундаменту 10,50 х 9,70. Дом - только стены и крыша. Перекрытия второго этажа - плиты, третьего (мансардного) - деревянные балки. Электрика не разведена. Штукатурки нет. Стяжки полов нет . Отделки нет. Есть гараж. Узаконена консервация (длит срок). Собственник один.
Строение имеет адрес в деревне (НЕ!! садовое товарищество).
Строение имеет адрес в деревне (НЕ!! садовое товарищество).
На сайте с 24 апреля 2025 16:54
На сайте с 24 апреля 2025 16:54
